Fairview Plaza

Fairview Plaza features three multi-tenant office towers totaling 315,000 square feet. It is located in the heart of Charlotte's most prestigious sub-market, SouthPark - boasting the area's best retail, hotels, restaurants and housing all within walking distance. Fairview Plaza is situated on multiple acres reaching from Piedmont Row Drive to Park South Drive. There is ample parking for tenants and guests with easy and quick access to I-77, the airport and Uptown Charlotte.

Download Brochure

5950 Fairview

5950 Fairview Road
Charlotte, NC 28210

5950 Fairview is one of three office buildings in Fairview Plaza with on-site property management and security. Walking distance to shopping, restaurants and apartments with quick access to I-77, Uptown Charlotte and Charlotte Douglas Interational Airport.

Details

  • Building Size: 133,652 Square Feet
  • Available Space: 11,881 Square Feet
  • Number of Floors: 8

Available Suites

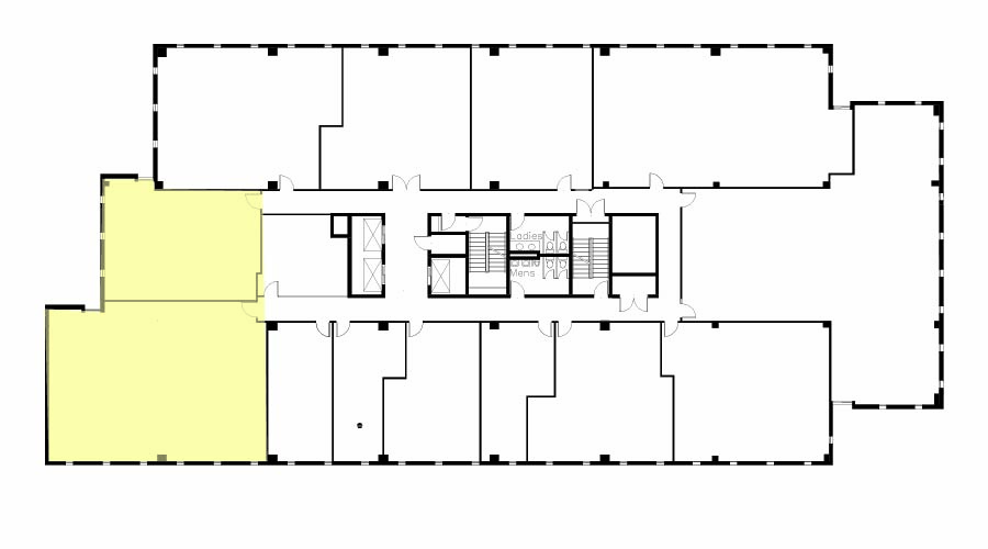
Suite 225
2,421 Square Feet
Available: Now

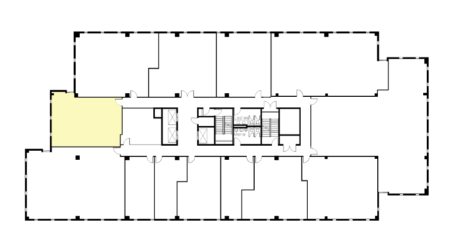
Suite 321
797 Square Feet
Available: Now

Suite 330
3,432 Square Feet
Available: Now

  • Can be combined with additional space(s) for up to 6,465 SF of adjacent space

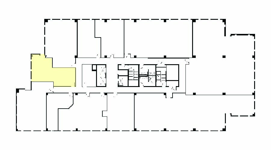
Suite 412
853 Square Feet
Available: Now

Suite 601
799 Square Feet
Available: Now

  • Can be combined with additional space(s) for up to 804 SF of adjacent space

Suite 610
918 Square Feet
Available: Now

Suite 630
243 Square Feet
Available: Now

Suite 718
1,009 Square Feet
Available: Now

Suite 720
400 Square Feet
Available: Now

Suite 770
1,009 Square Feet
Available: Now

Can be combined with additional space(s) for up to 3,632 SF of adjacent space


Dene Ecuyer

Dene Ecuyer
Commercial Broker
decuyer@aacusa.com
(704) 295-4034