Whitehall Corporate Center

Whitehall Corporate Center is located within the larger 700-acre Whitehall master-planned community which includes a technology park, corporate center, retail district, several residential communities and a nature preserve. Featuring six beautiful Class A suburban office buildings, Whitehall Corporate Center is strategically located on Arrowood Road at I-485. This location offers unparalleled access to all major interstate highways in Charlotte, NC including I-485, I-77 and I-85 and is within a few minute's drive to Charlotte Douglas International Airport. Additionally, Whitehall showcases one of the largest private collections of public art in the Southeast.

Download Brochure

Whitehall Corporate Center II

3700 Arco Corporate Drive
Charlotte, NC 28273

Whitehall Corporate Center II is a five-story, Class A office building. Conveniently located minutes to I-485, I-77 and Charlotte Douglas International Airport.

Details

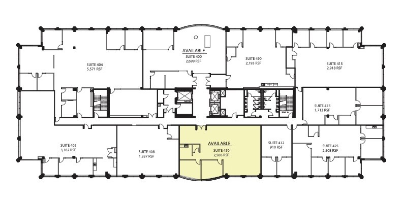
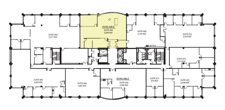
  • Building Size: 128,700 Square Feet
  • Available Space: 5,205 Square Feet
  • Number of Floors: 5

Available Suites

Suite 400
2,699 Square Feet
Available: Now

Suite 450
2,506 Square Feet
Available: Now


Cooper Burton

Cooper Burton
Executive Vice President, Commercial Leasing
cburton@aacusa.com
(704) 295-4051